Zum Hauptinhalt springen

LOHBERGER-Herd ALPIN DACHSTEIN, R, Warmhaltef. Stahlpl

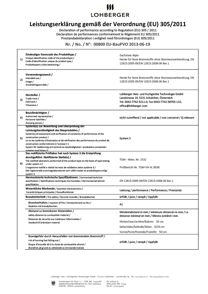
Produktinformationen "LOHBERGER-Herd ALPIN DACHSTEIN, R, Warmhaltef. Stahlpl"

Die schönste Verbindung von natürlichem Holz, massiven Stein und modernem Design.

Der Alpin begeistert mit Griffen aus Holz und einer Oberfläche aus Stein. Modern mit mattem Schwarz und geradlinigem Design.
Beim Anblick des neuen Lohberger Alpin wird einem warm um‘s Herz.

Ihre Vorteile:

  • Naturstein- und Holzapplikationen für mehr Natürlichkeit
  • Holzapplikation gegen Ihr original Küchenfrontdekor tauschen*
  • Herd in Küchennatursteinarbeitsplatte integrieren*

 

*Wir übernehmen keine Gewährleistung für die bauseiteigen Applikationen und Arbeitsplatten. Wir weisen explizit auf mögliche hohe Temperaturen hin.

Teleskopsockel

Der neue Teleskopsockel ermöglicht eine stufenlose Anpassung der Herdhöhe (serienmäßig bei allen LHS-Geräten, gegen Aufpreis bei Rega). Bei allen Varioline Herden muss die gewünschte Höhe bei der Bestellung angegeben werden.

Holz

geeigneter Brennstoff: Holzscheite oder Holzbriketts

Jetfire

Mehr Leistung aus gleicher Holzmenge: Dieses Gerät ist mit dem LOHBERGER Jetfire-System ausgestattet und ist daher besonders effizient. Die Bündelung der Flammen direkt über dem Feuerraum und extra zugeführte Verbrennungsluft bewirken einen "Turboeffekt", der zu Temperaturen bis zu 1200°C führt.

Grenzwerte

Alle neuen Grenzwerte, die in Deutschland durch die 1. BImSchV (Emissionsgrenzwerte 2. Stufe) sowie in Österreich durch Artikel 15a B-VG und durch die Schweizer Luftreinhalteverordnung LRV eingehalten werden müssen, werden vom Lohberger Produktsortiment erfüllt.

Außenluft Anschluss

Die zur Verbrennung benötigte Frischluft wird nicht dem Aufstellungsraum entzogen, sondern wird überwiegend von außen über eine Verbindungsleitung der Feuerstätte zugeführt.

Anschluss flexibel

Für mehr Flexibilität beim Anschluss Ihres Gerätes, ist der Rauchrohranschluss an der Rückseite des Herdes senkrecht um +/- 4,5 cm und horizontal um +/- 1,25 cm verstellbar. Siehe technische Daten für Details je Modell.

Energieeffizient A+

 

Bedienungsanleitung: download

0 von 0 Bewertungen

Durchschnittliche Bewertung von 0 von 5 Sternen

Bewerten Sie dieses Produkt!

Teilen Sie Ihre Erfahrungen mit anderen Kunden.